| Площадь жилая | 138,3 м2 |
|---|---|
| Площадь гаража | 22,2 м2 |
| Машиноместа (гараж / навес) | 1/0 |
| Площадь чистая | 161,1 м2 |
| Площадь застройки | 124,7 м2 |
| Общий объем помещений (брутто) | 760,0 м3 |
| Количество комнат | 5 |
| Размеры участка застройки | 23,40 x 21,10 м |
| Индекс энергоэффективности (EP) | 69,06 кВтч на м2 в год |
| Уклон кровли | 1° |
| Высота до конька крыши | 6,91 м |
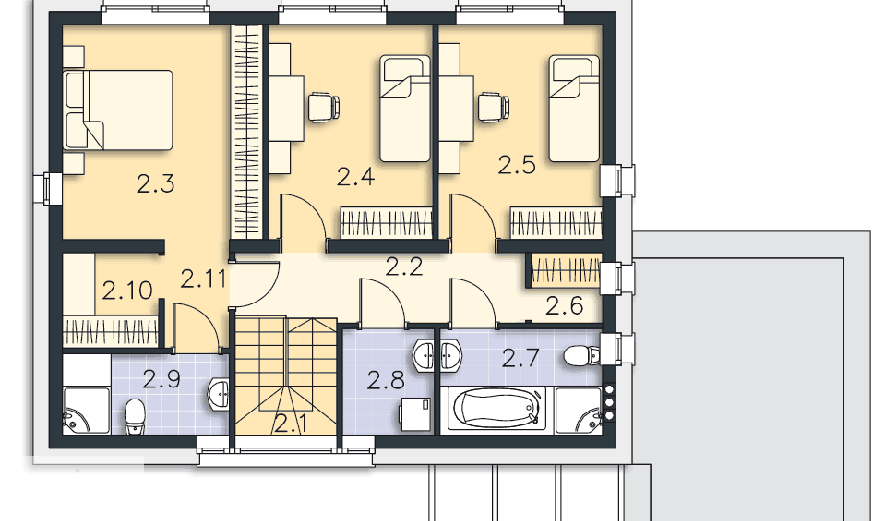
| № | Помещения | Площадь Нетто | Полезная площадь |
| 1 | прихожая | 4,7 м2 | |
| 2 | коридор | 6,8 м2 | |
| 3 | санузел | 3,7 м2 | 3,1 м2 |
| 4 | кабинет | 10,3 м2 | |
| 5 | гостиная | 25,9 м2 | |
| 6 | кухня | 13,7 м2 | |
| 7 | кладовая | 1,7 м2 | |
| 8 | бойлерная + подсобное помещение | 2,6 м2 | |
| Итого | 68,7 м2 | ||
| 9 | гараж | 22,2 м2 | |
| 10 | лестничная площадка | 7,4 м2 | |
| 11 | терраса | 40,2 м2 |
n








